Projekte
Dienstleistungen
Büro
Kontakt
Projekte
Einfamilienhäuser
Mehrfamilienhäuser
Energetische Bauten
Modernisierungen
Wettbewerbe
Dienstleistungen
Büro
Mitarbeiter
Vision
Geschichte
Mitgliedschaften
Offene Stellen
Lehr-/Schnupperstellen
Kontakt
Impressum
Einfamilienhäuser
Mehrfamilienhäuser
Energetische Bauten
Modernisierungen
Wettbewerbe
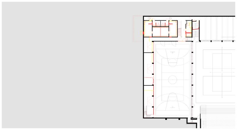
Sportanlage Kantonsschule, Wettingen
Jahr
2024
Sportplatz mit Umgebung
Erdgeschoss
Untergeschoss
Schnitt
.hausformat | Webdesign, TYPO3, 3D Animation, Video, Game, Print